Berlin - Tegel:
bezugsfreies 2,5 Zimmer Dachgeschoß mit Balkon und Dachterrassen Option
Objekt-Nr.: Karo

Hausansicht mit Stellplätzen

Zimmer 1

Küche

Badezimmer

Badezimmer

halbes Zimmer

Zimmer 2 mit Balkon

Zimmer 2 mit Balkon

Aussicht nach Süd

Asusicht nach West

Balkon

Balkon

Abstellkammer

Dachkuppel

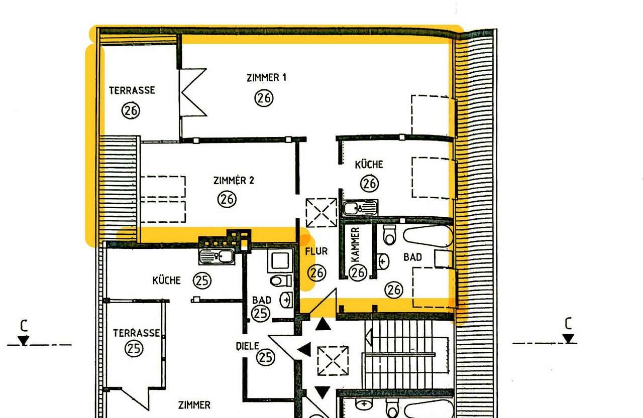
Grundriss

GR TE Dachfläche
















Preis:
389.000 €
Wohnfläche ca.:
80,84 m²
Zimmeranzahl:
2,5
Diese charmante Dachgeschosswohnung im fünften Obergeschoss eines gepflegten Mehrfamilienhauses befindet sich im beliebten Berliner Ortsteil Tegel. Die Wohnung besticht durch ihre helle Westausrichtung und den herrlichen Balkon mit Abendsonne, der zum Entspannen nach einem langen Tag einlädt.
Auf rund zweieinhalb Zimmern bietet die Wohnung ein familienfreundliches Raumkonzept mit einer großzügigen Küche und einem geräumigen Badezimmer. Das durchdachte Raumgefühl wird durch ein großes Oberlicht im Flur zusätzlich unterstrichen, das den Eingangsbereich mit natürlichem Licht durchflutet.
Ein besonderes Highlight ist das Sondernutzungsrecht an der über der Wohnung liegenden Dachfläche.Hier besteht die Möglichkeit zum Aufbau einer Dachterrasse, sodass dem zukünftigen Dachgarten über den Dächern Tegels nichts mehr im Wege steht.
Zur Wohnung gehört außerdem ein Kellerraum sowie ein Stellplatz, der über ein separates Grundbuchblatt verfügt und im Kaufpreis bereits enthalten ist. Der Stellplatz ist noch bis Ende 2026 vermietet.
Wohnungstyp: Dachgeschoss
Etage: 5
Etagenanzahl: 5
Provisionspflichtig: ja
Provision: 3,57% inkl. Mwst.
Nutzfläche ca.: 6 m²
Küche: Einbauküche
Anzahl Schlafzimmer: 1
Anzahl Badezimmer: 1
Balkon: 1
Keller: ja
Letzte Modernisierung/ Sanierung: 2017
Qualität der Ausstattung: normal
Baujahr: 1905
Hausgeld: 469,28 €
Bezugsfrei ab: sofort
Zustand: gepflegt
Heizung: Zentralheizung
Befeuerungsart: Gas
Energieausweistyp: Verbrauchsausweis
Energieeffizienz-Klasse: E
Das Objekt wird exklusiv von PLUS.PUNKT Vertriebs GmbH vermarktet. Die Provision für den Käufer beträgt 3,57 % des Kaufpreises inkl. der gesetzlichen Mehrwertsteuer, verdient und fällig mit Beurkundung des notariellen Kaufvertrages. Der Immobilienmakler hat einen provisionspflichtigen Maklervertrag mit dem Verkäufer in gleicher Höhe abgeschlossen.
Das könnte Ihnen auch gefallen
Das DAHLIA
PLUS.PUNKT Vertriebs- & Entwicklungsgesellschaft für Immobilien mbH
Herr Dipl. Kfm. Michael Schulz-Barnikow
Krottnaurerstraße80
14129 Berlin
Telefon: +49 30 8034450
Mobil: +49 172 393 1234
Fax: +49 30 230 96 299
Karolinenstr. 1D
13507 Berlin - Tegel
Berlin










































































